Szczecin, Świerczewo

Lokal do wynajęcia

170,00 m2 22,52 zł/m2

3 829 zł

nowa oferta
Kamil Ignasiak

Manager

Opis nieruchomości

Lokal handlowo - magazynowy. To doskonała propozycja dla firm poszukujących powierzchni w Świetnej lokalizacjiParking - przeznaczony dla obiektu. 

Skontaktuj się z nami, aby umówić wizytę!

Do dyspozycji najemców - miejsca parkingowe.
Lokalizacja umożliwia sprawny dojazd do pozostałych części miasta zarówno komunikacją miejską jak i prywatną.
Wygodny oraz szybki dojazd do Centrum Szczecina oraz PKPW odległości 50 m przystanki autobusowe.
Istnieje możliwość dostosowania powierzchni do własnych potrzeb biznesowych.

Idealna powierzchnia do prowadzania działalności handlowej, produkcyjnej, magazynowej! 

W oparciu o Twoje wymagania przygotujemy pełne zestawienie ofert powierzchni dostępnych na rynku.
Dzięki znajomości rynku, posiadamy dostęp do niepublikowanych oraz stale aktualizowanej bazy ofert.
Prowadzimy negocjacje w imieniu klienta w celu uzyskania najkorzystniejszych warunków finansowych, technicznych oraz prawnych.

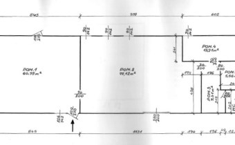
Specyfikacja obiektu:

  • Lokal o pow. 170 m2,
  • Składa się z 2 duże pomieszczenia ( o pow. 61 m2, 71 m2), 3 mniejsze pomieszczenia, toalety oraz kuchni,
  • Dostęp poprzez przeszklone drzwi, 
  • Klimatyzacja, 
  • Ogrzewanie,
  • Magazyn z dostępem bramy, 
  • Duży parking, 
  • Istnieje możliwość wynajęcia dodatkowo powierzchni biurowo - handlowej.

Otoczenie:

  • Lokalizacja: Szczecin - Centrum / Gumieńce,
  • Przystanek komunikacji miejskiej autobusowej oddalony 50 m oraz tramwajowej oddalony 600m,
  • Sklepy spożywcze, restauracje, poczta, szkoła oraz placówka bankowa w sąsiedztwie,
  • Wygodny oraz szybki dojazd do Centrum Szczecina oraz PKP.

Czynsz najmu netto plus media oraz podatek od nieruchomości (w wysokości 526 zł).
Zachęcam do kontaktu! 
Nr. tel. w zakładce po prawej stronie. 

Opis oferty zawarty na stronie internetowej sporządzany jest na podstawie oględzin nieruchomości oraz informacji uzyskanych od właściciela, może podlegać aktualizacji i nie stanowi oferty określonej w art. 66 i następnych K.C.

Nota prawna

Opis oferty zawarty na stronie internetowej sporządzany jest na podstawie oględzin nieruchomości oraz informacji uzyskanych od właściciela, może podlegać aktualizacji i nie stanowi oferty określonej w art. 66 i następnych K.C.

Szczegóły

Symbol oferty KIN-LW-1463
Powierzchnia 170,00 m²

Podobne oferty

Lokal do wynajęcia - Szczecin, Dąbie
lokal do wynajęcia - Szczecin, Dąbie

KIN-LW-1461

Szczecin, Dąbie
lokal do wynajęcia

130,00 m²

3 250
25,00 zł/m2
nowa oferta
Dodaj
do notatnika
Lokal do wynajęcia - Szczecin, Centrum
lokal do wynajęcia - Szczecin, Centrum

KIN-LW-1422

Szczecin, Centrum
lokal do wynajęcia

80,00 m²

3 600
45,00 zł/m2
Dodaj
do notatnika
Lokal do wynajęcia - Szczecin, Centrum
lokal do wynajęcia - Szczecin, Centrum

KIN-LW-1404

Szczecin, Centrum
lokal do wynajęcia

50,00 m²

3 000
60,00 zł/m2
Dodaj
do notatnika
Lokal do wynajęcia - Szczecin, Centrum
lokal do wynajęcia - Szczecin, Centrum

KIN-LW-1403

Szczecin, Centrum
lokal do wynajęcia

70,00 m²

4 550
65,00 zł/m2
Dodaj
do notatnika

Napisz do nas

Proszę wypełnić to pole
Proszę wypełnić to pole
Proszę wypełnić to pole
Proszę wypełnić to pole
Trwa wysyłanie...

Ta strona wykorzystuje pliki cookies w celach statystycznych oraz w celu dostosowania naszych serwisów do indywidualnych potrzeb klientów. Zmiany ustawień dotyczących plików cookie można dokonać w dowolnej chwili modyfikując ustawienia przeglądarki. Korzystanie z tej strony bez zmian ustawień dotyczących cookies oznacza, że będą one zapisane w pamięci urządzenia.

rozumiem