




Opis nieruchomości
Nowo wybudowany obiekt w Świetnej lokalizacji. Dostępny duży parking. Lokal bez barier architektonicznych. Wyposażony w klimatyzację, aneks kuchenny, monitoring oraz system kontroli dostępu.
Skontaktuj się z nami, aby umówić wizytę!
Idealna lokalizacja do prowadzenia działalności medycznej / biurowej / usługowej / handlowej !
Wygodny oraz szybki dojazd do Centrum Szczecina. W odległości 80 m przystanki komunikacji miejskiej.
Duży bezpłatny parking przed obiektem.
Bezpośrednim sąsiedztwie jednej z głównych ulic, co umożliwia szybką komunikację z reszt miasta.
Położony w odległości 1,7 km od węzła Szczecin - Kijewo A6 oraz 80 m od przystanku komunikacji miejskiej.
W oparciu o Twoje wymagania przygotujemy pełne zestawienie ofert powierzchni dostępnych na rynku.
Dzięki znajomości rynku, posiadamy dostęp do niepublikowanych oraz stale aktualizowanej bazy ofert.
Prowadzimy negocjacje w imieniu klienta w celu uzyskania najkorzystniejszych warunków finansowych, technicznych oraz prawnych.
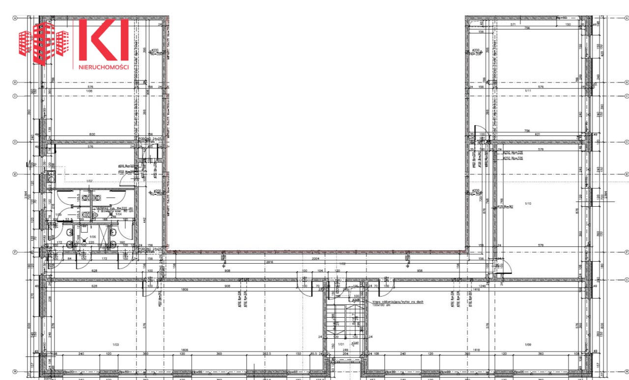
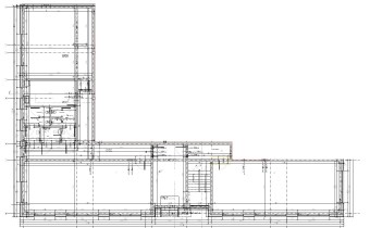
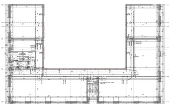
Specyfikacja obiektu:
- Nowoczesny lokal biurowo- usługowy o pow. ok. 816 m2,
- Składa się z parteru :trzech open space (89 m2, 82 m2, 62 m2), trzech toalet (w tym również dla osób niepełnosprawnych 22 m2), kuchni (17m2), klatka schodowa (37m2), korytarze (32m2). Piętra: pięciu open space (59 m2, 82 m2, 104 m2, 51 m2, 62 m2), dwóch toalet (19 m2), magazynku (3 m2), kuchni (17m2), klatka schodowa (12m2), korytarze (66m2),
- Parter - bez barier architektonicznych,
- Szerokie witryny,
- Nowocześnie wykończona przestrzeń,
- Wentylacja mechaniczna,
- Klimatyzacja indywidualnie sterowana,
- System alarmowy,
- Monitoring wizyjny,
- System kontroli dostępu,
- Rozprowadzona instalacja tele-informatyczna (Internet światłowodowy),
- Przy budynku dostępny duży parking!
- Ogrzewanie,
- Możliwa reklama na elewacji,
- Istnieje możliwość wynajęcia dodatkowej powierzchni handlowej, magazynowej bądź biurowej!
Otoczenie:
- Lokalizacja: Szczecin – Dąbie przy ulicy Struga,
- Wygodny oraz szybki dojazd do Centrum Szczecina,
- W pobliżu: biura, medycyna oraz parki handlowe,
- Obiekt zlokalizowany w odległości 1,7 km od węzła trasy 10 i S3 / A6,
- W odległości 80 m przystanki komunikacji miejskiej.
Czynsz najmu netto plus media oraz podatek od nieruchomości.
Zachęcam do kontaktu! Nr. tel. w zakładce po prawej stronie.
Opis oferty zawarty na stronie internetowej sporządzany jest na podstawie oględzin nieruchomości oraz informacji uzyskanych od właściciela, może podlegać aktualizacji i nie stanowi oferty określonej w art. 66 i następnych K.C.